IVY HOUSE

This project builds on Radieuse’s premise of living wall systems as an alternative façade typology more deeply integrated with local ecological conditions. With Ivy House, however, ivy becomes the primary driver of the design. Although ivy has increasingly been discouraged in the built environment due to its perceived potential to damage aging structures, research suggests that its benefits within an architectural context often outweigh its drawbacks.

In Ivy House, a carefully designed trellis aligns with and reinforces the façade expression, becoming an integral architectural element. A dense layer of ivy acts as a thermal shield and protects the building envelope from extreme weather and moisture exposure that can lead to cracking. The trellis is offset from the façade, limiting root contact with the structure while still providing effective thermal and environmental buffering. At street level, the living wall system also functions as a shading device and privacy screen for the terrace.

Beyond its architectural role, the system supports urban biodiversity. Ivy serves as a valuable food source for insects, while its dense foliage provides shelter, roosting, and nesting sites. It also helps trap airborne particulates, contributing to improved air quality. Thus again, such a façade strategy addresses the scarcity of green space in urban environments, transforming architecture into a living system and positioning the building as an active participant in its ecological context.

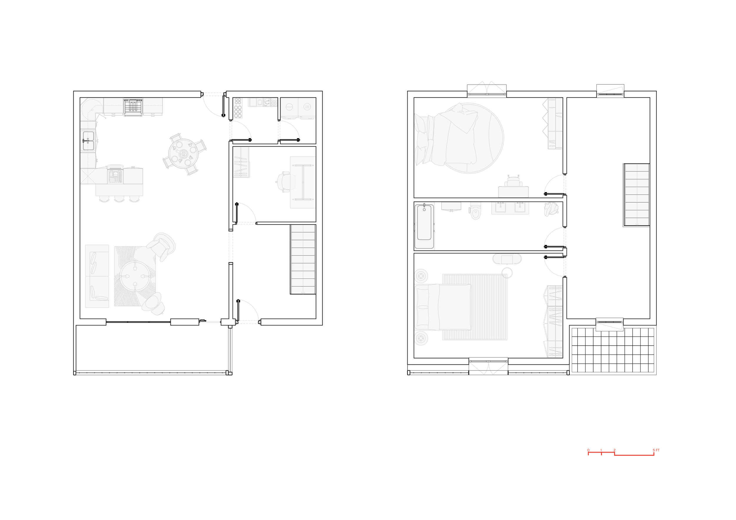
Program: residential

Size: 900 SF

Status: speculative

Year: 2026