PatC_House

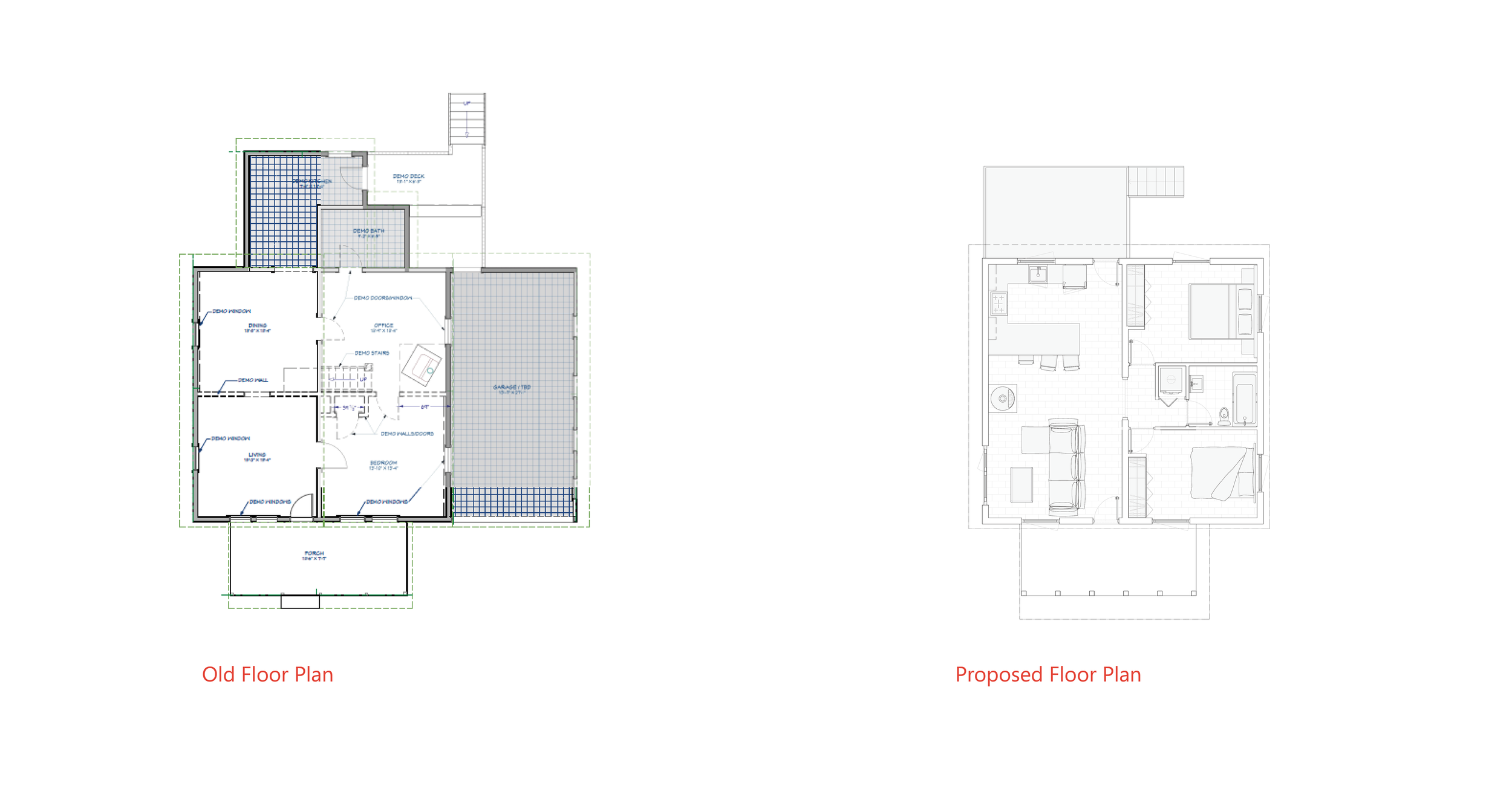
Studio Kame House was commissioned to redesign a newly acquired 800-square-foot residence in North Carolina. The original floor plan was divided into four rigid quadrants, resulting in an inefficient and uncomfortable living arrangement. The proposal reorganizes the layout by combining the living area and kitchen into a single open space occupying one half of the plan, while the remaining half is dedicated to two bedrooms and a shared bathroom.

The new configuration maximizes natural light, introduces a compact hallway that enhances privacy and intimacy for the bedrooms, and establishes a clear, efficient circulation path from the front entry to the backyard, well-suited for both the client and their pets. In collaboration with the client, the original ceiling joists were left exposed to celebrate the character of the existing heart pine.

This material language is extended through wood accents in the kitchen cabinetry and hallway, creating a warm, modern, and light-filled interior.

Program: residential

Size: 75 m2

Status: in progress

Year: 2026

Location: Hillsborough, NC, USA